BEL UFFICIO

12 900 €
Carat Properties

Carat Properties

Tour Odéon 36 av. de l'Annonciade

Vicino a negozi, servizi e spiagge

Rif. : AL 196 MC bis
Affitto : 12 900 €
Charges :
+1 290 €
Tipo di proprietà : Ufficio
Quartiere : La Rousse - Saint Roman (Monaco)
Superficie abitabile : 229 m²
Superficie totale : 229 m²
Livello : 1
Data di liberazione : Rapidement
Parcheggi : 3

Maggiori dettagli

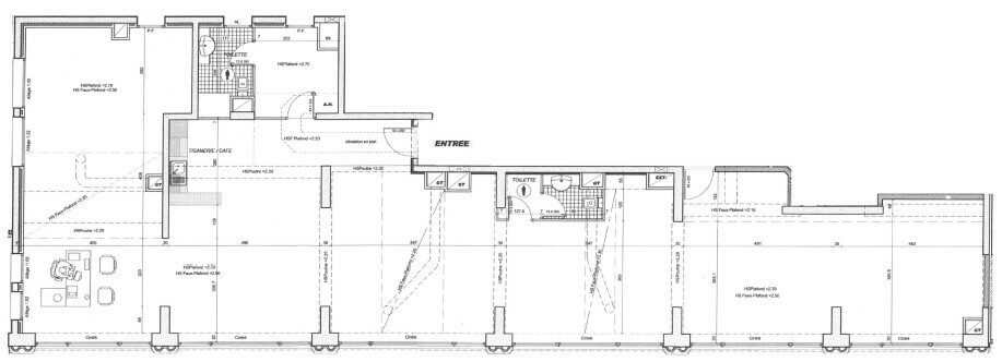
Situato in un residence con servizio di portineria 24 ore su 24, magnifico ufficio, composto da un  ingresso, un ampio ufficio/sala riunioni, altri 4 uffici, angolo cottura, bagno maschile, bagno femminile con lavandini, aria condizionata.

3 posti auto.

 

Carat Properties

Carat Properties

Tour Odéon 36 av. de l'Annonciade

Contatto

GKMPRZ
Copiare il codice antispam nel campo a destra
* campo obbligatorio

La Rousse - Saint Roman

Il quartiere di La Rousse Saint Roman si trova al confine orientale di Monaco, di fronte alla città di Roquebrune Cap Martin.

Qui si trovano numerosi edifici, tra cui il Monte Carlo Sun, il Parc Saint Roman, la Tour de l'Annonciade e la Tour Odeon.

Quartieri di Monaco

Mareterra Carré d'Or Condamine Fontvieille Jardin Exotique La Rousse - Saint Roman Larvotto Monaco-Ville Moneghetti Monte-Carlo Port