MONTE CARLO SOLE / STUDIO CON TERRAZZA / CANTINA e PARCHEGGIO
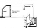
Grande monolocale con ingresso e armadio, cucina arredata, sala principale, bagno e loggia.
Una cantina
Parcheggio
Posizione del prodotto
Agence
15, boulevard Princesse Charlotte