CO-ESCLUSIVA: TORRE DUPLEX ODEON, VISTA PANORAMICA

180 000 € Co-esclusiva
Lorenza von Stein Monaco

Lorenza von Stein Monaco

47, boulevard du Jardin Exotique

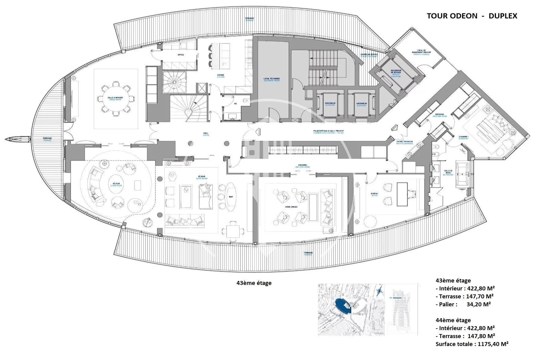
Immergetevi nell’universo del lusso assoluto ed elevate la vostra quotidianità a livelli ineguagliabili scoprendo l’eccezionale Tour Odéon. Questo prestigioso appartamento duplex, con una superficie di 1175 m² e 7 locali, incarna il massimo del raffinamento, offrendo tranquillità e benessere nel cuore di Monaco, con una vista panoramica sul Mediterraneo.
All’interno di questa residenza d’eccezione, avrete accesso a una gamma completa di servizi di altissimo livello, tra cui concierge, parcheggiatore, navetta privata, spa, piscina interna e un esclusivo servizio in camera firmato dal ristorante Cipriani.
Ogni dettaglio è stato studiato per coniugare estetica e tecnologia all’avanguardia, creando uno spazio in cui lusso, modernità e funzionalità si incontrano perfettamente.
Questa proprietà straordinaria si distingue per una progettazione interna che unisce eleganza e innovazione tecnologica. I due livelli di questo raffinato appartamento offrono un ambiente sontuoso, dove lusso, modernità e funzionalità danno vita a un’atmosfera unica.

Rif. : LMC1542*
Affitto : 180 000 €
Charges :
+18 000 €
Camere : 5
Bagni : 5
Tipo di proprietà : Appartamento
Edicifio : Tour Odéon
Quartiere : La Rousse - Saint Roman (Monaco)
Superficie abitabile : 880 m²
Superficie totale : 1175 m²
Superficie terrazzi : 295 m²
Livello : 43
Data di liberazione : Libre
Parcheggi : 5+
Co-esclusiva

Maggiori dettagli

Al 43° piano di questa proprietà d’eccezione, scoprirete uno spazio abitativo raffinato e di rara eleganza. Un maestoso ingresso vi accoglie, aprendosi su un ampio doppio soggiorno, inondato di luce naturale, ideale per ricevere ospiti. La sala da pranzo, anch’essa dalle generose proporzioni, invita a condividere momenti conviviali in un ambiente essenziale e contemporaneo.

La cucina, completamente attrezzata e dotata di un’office adiacente, unisce design moderno e funzionalità. Per i momenti di relax, una sala è dedicata all’home cinema. Un elegante studio completa questo piano con grande raffinatezza. La camera principale, un vero e proprio rifugio di lusso, dispone di un ampio guardaroba privato e di un bagno en suite.

Al 44° piano, l’eleganza prosegue con un ampio soggiorno, progettato per offrire un ambiente di vita eccezionale. La camera padronale, una vera suite reale, è dotata di grandi cabine armadio e di un sontuoso bagno en suite. Altre due spaziose camere da letto, ciascuna con il proprio bagno en suite, garantiscono comfort e indipendenza.

Una lavanderia e una camera di servizio con bagno con doccia completano la disposizione di questo livello. Questa proprietà è inoltre completata da sette posti auto e una cantina.

Lorenza von Stein Monaco

Lorenza von Stein Monaco

47, boulevard du Jardin Exotique

Contatto

EFILNP
Copiare il codice antispam nel campo a destra
* campo obbligatorio

Posizione del prodotto

Quartieri di Monaco

Mareterra Carré d'Or Condamine Fontvieille Jardin Exotique La Rousse - Saint Roman Larvotto Monaco-Ville Moneghetti Monte-Carlo Port